



“The restoration of the park marked the beginning of an era in which public/private partnerships became the financiers and guardians of the public realm—a watershed moment in the history of park-making.” New York Times

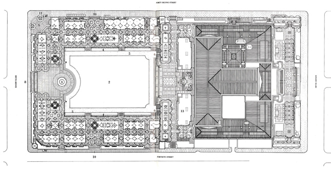
This is a great example of urbanism as an experiment for how a reasonably small development can turn around the societal value of a space. Its cloister-style layout is a very classical design. However, this allows for all aspects of engagement through the space, with the visitors unaware that they are trading upon the large-scale green roof of the neighbouring library.
The park creates areas for work, rest, and play, operating from the point of prospect refuge theory, creating a cohesion of comfort security and freedom.
Although now the hospitality areas are encroaching on the soft landscape areas, smothering them with blankets of sand, due to the obvious popularity of the space, it shows it is a successful use of the area and creates community engagement.

Leave a comment